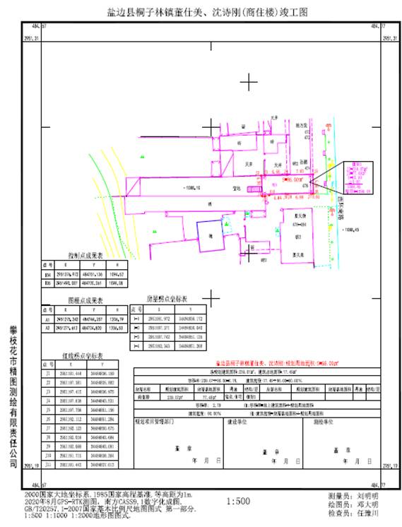
鹽邊縣董仕美、沈詩剛商住樓建設工程行規劃核實批前公示
發布時間:2020-08-24 來源:鹽邊縣自然資源規劃和林業局 選擇閱讀字號:[ 大 中 小 ] 閱讀次數:
公 示
根據《中華人民共和國城鄉規劃法》《四川省城鄉規劃條例》等有關規定,我局對“鹽邊縣董仕美、沈詩剛商住樓建設工程”按現狀進行規劃核實批前公示。
公示方式及公示地點
一、鹽邊縣自然資源規劃和林業局公示欄
二、鹽邊縣公眾信息網
(http://www.hxzrq.cn)
三、項目現場
公示期限:2020年8月24日—2020年9月1日(七個工作日)
公示期內,涉及該項目的相關利害關系人對該項目規劃核實有異議者,請具真實姓名和有效聯系方式將書面意見送達鹽邊縣自然資源規劃和林業局,且在法定時限內,相關利害關系人享有要求聽證的權利。
公示期滿,我局將依法辦理該項目規劃核實手續。
通訊地址:鹽邊縣自然資源規劃和林業局403室
聯 系 人:馬志華,王 敏
聯系電話:0812-8664959
附件:鹽邊縣董仕美、沈詩剛商住樓建設工程竣工圖

鹽邊縣自然資源規劃和林業局
2020年8月24日



