鹽邊縣自然資源和規劃局 關于鹽邊釩鈦產業開發區鈦材加工園基礎設施建設項目二期工程標準化廠房—年產60萬噸攀西鈦精礦升級轉化氯化鈦渣原料場工程方案設計—年產30萬噸高端釩鈦耐磨材料生產聯合車間工程方案設計公示
發布時間:2023-06-28 來源:鹽邊縣自然資源和規劃局 選擇閱讀字號:[ 大 中 小 ] 閱讀次數:
鹽邊縣自然資源和規劃局
關于鹽邊釩鈦產業開發區鈦材加工園基礎設施建設項目二期工程標準化廠房—年產60萬噸攀西鈦精礦升級
轉化氯化鈦渣原料場工程方案設計—年產30萬噸高端釩鈦耐磨材料生產
聯合車間工程方案設計公示
鹽邊自規〔2023〕18號
根據《中華人民共和國城鄉規劃法》第四十條規定,“城市、縣人民政府城鄉規劃主管部門或省、自治區、直轄市人民政府確定的鎮人民政府應當依法將經審定的修建性詳細規劃、建設工程設計方案的總平圖予以公布”,現將鹽邊釩鈦產業開發區鈦材加工園基礎設施建設項目二期工程標準化廠房—年產60萬噸攀西鈦精礦升級轉化氯化鈦渣原料場工程方案設計—年產30萬噸高端釩鈦耐磨材料生產聯合車間工程方案設計公示如下:
一、公示地點
鹽邊縣自然資源和規劃局、項目施工現場、鹽邊縣人民政府網(http://www.hxzrq.cn/)。
二、公示期限
2023年6月28日—2023年7月6日(7個工作日)。
三、意見反饋渠道
在公示期限內,若有意見,請通過電話或書面郵寄方式向鹽邊縣自然資源和規劃局空間規劃與用途管制股反饋,反饋意見請具以真實姓名和聯系地址,否則不予受理。
聯系地址:鹽邊縣自然資源和規劃局501室
聯 系 人:李勇春
郵 編:617100;聯系電話:0812—3968828
特此公示。
附件:1.鹽邊釩鈦產業開發區鈦材加工園基礎設施建設項目二期工程標準化廠房—年產60萬噸攀西鈦精礦升級轉化氯化鈦渣原料場工程方案設計—年產30萬噸高端釩鈦耐磨材料生產聯合車間工程項目簡介
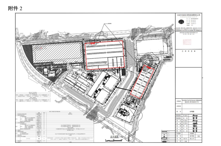
2.鹽邊釩鈦產業開發區鈦材加工園基礎設施建設項目二期工程標準化廠房—年產60萬噸攀西鈦精礦升級轉化氯化鈦渣原料場工程方案設計—年產30萬噸高端釩鈦耐磨材料生產聯合車間工程項目總平面布置圖
3.鹽邊釩鈦產業開發區鈦材加工園基礎設施建設項目二期工程標準化廠房—年產60萬噸攀西鈦精礦升級轉化氯化鈦渣原料場工程方案設計—年產30萬噸高端釩鈦耐磨材料生產聯合車間工程項目鳥瞰圖
鹽邊縣自然資源和規劃局
2023年6月28日
附件1
鹽邊釩鈦產業開發區鈦材加工園基礎設施建設項目二期工程標準化廠房—年產60萬噸攀西鈦精礦升級轉化
氯化鈦渣原料場工程方案設計—年產30萬噸高端釩鈦耐磨材料生產聯合
車間工程項目簡介
一、項目概況
本項目位于攀枝花市鹽邊縣新九鎮安寧村,鹽邊釩鈦產業開發區釩鈦及新材料產業組團的中部、攀云鈦公司北面。場地地形開闊,整個地塊呈東高西低。項目總用地面積296578.08m²,總計容建筑面積220240.37m²,擬建總建筑面積113513.32m²。
項目擬建生產聯合車間1棟,占地面積37536.83m²,總建筑面積37536.83m²,計容建筑面積75073.66m²;原料廠房1棟,占地面積14033.73m²,總建筑面積14033.73m²,計容建筑面積28067.46m²,主廠房建筑高度17.9m。
外立面主要采用綠色彩鋼瓦、黃灰色彩鋼瓦、淺灰色彩鋼瓦。
二、主要經濟技術指標
規劃用地面積296578.08m²,總建筑面積為173265m²(其中本期新建聯合生產車間37536.83m²,原料廠房14033.73m²,后期擬建廠房108548.31m²,行政辦公及生活服務設施13146.13m²);總計容建筑面積333383.87m²(其中本期聯合生產車間75073.66m²,原料廠房28067.46m²;后期擬建廠房217096.62m²,行政辦公及生活服務設施13146.13m²),容積率1.12;建筑基底面積102929.6m²,建筑系數34.71%;綠地面積12827.42m²,綠地率4.33%;機動車位358個。





