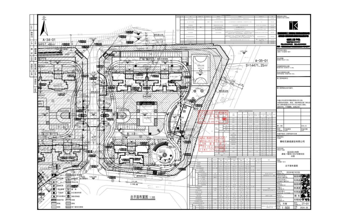
鹽邊縣紅格鎮康城·馨苑小區6-8#樓項目調整方案設計總平面布置圖公示
發布時間:2024-06-24 來源:鹽邊縣自然資源和規劃局 選擇閱讀字號:[ 大 中 小 ] 閱讀次數:
公示
應攀枝花康城建設有限公司申請,根據《中華人民共和國城鄉規劃法》《四川省城鄉規劃條例》等相關法律法規,我局對鹽邊縣紅格鎮康城·馨苑小區6-8#樓項目調整方案設計總平面布置圖進行公示。
一、公示方式及公示地點
鹽邊縣自然資源和規劃局公示欄、鹽邊縣人民政府網(http://www.hxzrq.cn/)、鹽邊縣紅格鎮康城·馨苑小區6-8#樓項目現場。
二、公示期
2024年6月24日—7月2日(7個工作日)。
公示期內,涉及該項目的相關利害關系人對該項目方案設計有異議者,請出具真實姓名和有效聯系方式將書面意見送達鹽邊縣自然資源和規劃局,且在法定時限內,相關利害關系人享有要求聽證的權利。
公示期滿,我局將依法鹽邊縣紅格鎮康城·馨苑小區6-8#樓項目調整方案設計進行審批。
聯系地址:鹽邊縣自然資源和規劃局515室
聯 系 人:王敏 李勇春
郵 編:617100;聯系電話:0812—3968828。
鹽邊縣自然資源和規劃局
2024年6月24日




