鹽邊縣自然資源和規劃局關于攀枝花市鹽邊縣紅果片區危舊房棚戶區改造項目外墻飾面顏色設計變更的公示
發布時間:2023-08-14 來源:鹽邊縣自然資源和規劃局 選擇閱讀字號:[ 大 中 小 ] 閱讀次數:
鹽邊縣自然資源和規劃局
關于攀枝花市鹽邊縣紅果片區危舊房棚戶區
改造項目外墻飾面顏色設計變更的公示
鹽邊自規〔2023〕27號
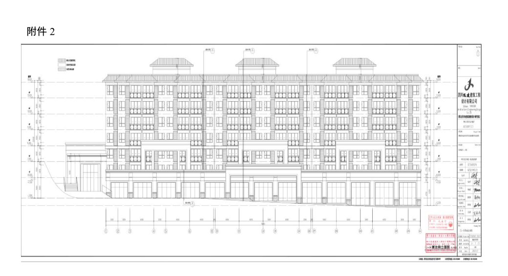
我局收到《關于攀枝花市鹽邊縣紅果片區危舊房棚戶區改造項目外墻飾面設計變更的報告》。原設計的外墻飾面大面積為淺灰色真石漆、墻裙為灰色真石漆。施工過程中考慮紅果彝族鄉的民族文化及人文環境,經多種樣板漆面參與比對,取消原墻裙灰色真石漆,整個外墻飾面均使用淺灰色真石漆,與周邊環境搭配更為協調。經現場核實,原則同意調整規劃設計變更。現將設計變更公示如下:
一、變更內容:所有外墻面墻裙灰色真石漆取消,變更為與外墻面一致的淺灰色真石漆。
二、公示地點:鹽邊縣自然資源和規劃局公示欄、項目施工現場、鹽邊縣人民政府網。
三、公示期限:2023年8月14日—2023年8月22日(7個工作日)
四、意見反饋渠道:在公示期限內,若有意見,請通過電話或書面郵寄方式向鹽邊縣自然資源和規劃局空間規劃和用途管制股反饋意見,反饋意見請以真實姓名和聯系地址方式進行,否則不予受理。
聯系地址:鹽邊縣自然資源和規劃局501室
聯 系 人:王 敏
郵 編:617100;聯系電話:0812—3968828
特此公示。
附件:1.四川遠建建筑工程設計有限公司變更通知單
2.變更前立面圖
3.變更后立面圖
4.變更前后效果圖
鹽邊縣自然資源和規劃局
2023年8月14日







