安寧加油加氣站方案設計公示
發布時間:2025-10-28 來源:鹽邊縣自然資源和規劃局 選擇閱讀字號:[ 大 中 小 ] 閱讀次數:
公示
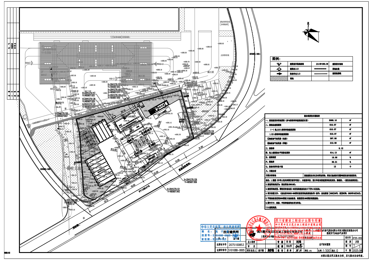
應中國石油天然氣股份有限公司四川攀枝花銷售分公司申請,根據《中華人民共和國城鄉規劃法》《四川省城鄉規劃條例》等相關法律法規,我局于2025年8月26日—9月3日對新建安寧加油加氣站項目方案設計總平面布置圖進行了公示,因該項目總平面布置圖布局調整,現對該項目方案設計總平面布置圖重新進行公示。
一、公示方式及公示地點
鹽邊縣政務服務中心公示公告欄、鹽邊縣人民政府網(http://www.hxzrq.cn/)、新建安寧加油加氣站項目現場。
二、公示期
公示期內,涉及該項目的相關利害關系人對該項目方案設計有異議者,請出具真實姓名和有效聯系方式將書面意見送達鹽邊縣自然資源和規劃局,且在法定時限內,相關利害關系人享有要求聽證的權利。
公示期滿,我局將依法對新建安寧加油加氣站項目方案設計進行審批。
聯系地址:鹽邊縣自然資源和規劃局515室
聯 系 人:王敏 李勇春
郵 編:617100;聯系電話:0812—3968828
鹽邊縣自然資源和規劃局
2025年10月28日
總平面布置圖




